諫早市K様邸工事
・・・ 2010年3月 工期15日
![]()

◆施工前◆
![]()
|
|
|
![]()
◆完成写真◆

「全天候型」僕らの秘密基地誕生!
|
|
![]() オプションのスライド網戸、内部日除けを取り付け四季を通じ快適に過ごせます。 床の素材は今回メンテナンスフリー300角タイル張り仕様。 お好みによりウッドデッキ等いろんな素材に対応できます。 |
![]() |
『Zima(ジーマ)』 |
諫早市M様邸工事
・・・ 2010年2月 工期20日
![]()

◆施工前◆
![]()
|
|
|
|
今回のプランのこだわりのひとつ! |
||
![]()
◆完成写真◆

白色を基調にした建物に併せて門柱廻りをシャープに仕上げました。
角柱は70mm角の天然木のスクリーン柱を沿えて、門廻りを引き締めました。
![]() ウッドデッキ 基礎部分はコンクリート仕上げの為、湿気を寄せ付けません(基本ですが) 。 デッキ下部の柱部分から木材の樹液(タンニン)が出る関係で茶褐色のシミが出ます。 |
![]() 門柱 表札の素材はタイル+ステンレス。 |
![]() アプローチ廻りに白砂利を敷き込みました。下地に雑草対策として雑草が生えない処理をしていますので安心! |
諫早市I様邸工事
・・・ 2010年2月 工期20日
![]()

◆施工前◆
![]()
◆完成写真◆

庭改修工事(建物のリフォーム時に併せて施工いたしました)
|
|
|
![]() 天然竹で四つ目垣を作成しました。天然竹ならでの味わいがたまりません。 流行の樹脂製竹垣ではまねできません足元の縁石(天然石)と相性もぴったり! |
![]() 落ち葉があるだけでも何か気持ちがほっとするような1枚です。 庭は雰囲気ある川砂利にて仕上、春先から蔓延る雑草に頭を悩ませますが下地に雑草対策処置を施していますのでこれで完璧に生えません。 |
長崎市H様邸工事
・・・ 2010年1月 工期20日
![]()
◆施工前◆
![]()
|
|
|
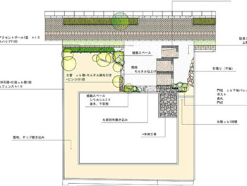
今回のプランは、 駐車スペースとアプローチを兼ね備えました。 広々としたメインガーデン 門柱 シンボルツリー |
|
![]()
◆完成写真◆

木質感あふれる建物を十分に演出。
いぶし色のレンガと砂利仕上げのアプローチ。駐車スペースもたっぷり確保できました。
![]() 潅木類により建物の基礎コンクリート部分を飾りつけ! 草花類のお手入れは大変ですが素敵に仕上がりました。 |
![]() 今回のプランのこだわりのひとつ、木質調の仕上がりのアルミ製アクセントポール&アルミメッシュ。 植えたばかりのつたがそろう頃には前面歩道とのプライバシー確保にも一役。 |
| ★今回使用商品(抜粋) | |
|
アクセントポール、 |
いぶしレンガ(舗装用) |